Die Einbausauna der Familie Michel

- 40 mm Blockelementkabine "Massiva" -

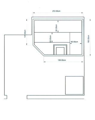
Größe der Einbausauna: 253 cm x 185 cm x 200 cm,

Besonderheiten dieser Sauna: Eckeinstieg – Tür ohne Schwelle – 8 kW „Kubic“-Softklimaofen für vier verschiedene Badeformen

– PLZ-Bereich 53… – Nähe Bonn –

Bereit für ein persönliches Angebot?

  • Gefällt Ihnen dieser Grundriss?
  • Trifft er auch auf Ihre Einbausituation zu?
Gern unterbreiten wir Ihnen ein kostenloses Angebot basierend auf dieser Sauna: Größe der Einbausauna: 253 cm x 185 cm x 200 cm, Bitte geben Sie uns die Info „Die Einbausauna der Familie Michel“ mit.

Skizze dieser Sauna

Oder: Anfrage direkt an Familie Michel

Hier können Sie per e-mail oder über telefonischen Rückruf direkt mit unseren Kunden Kontakt aufnehmen, evtl. auch um einen Termin für eine Ortsbesichtigung bitten.