Die Naturstamm-Sauna der Familie Vorwerk

- Naturstammsauna aus Rundstämmen-

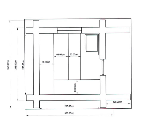
Rundstammhaus 358 cm x 358 cm mit integrierter Naturstammsauna 250 cm x 250 cm

Besonderheiten dieser Naturstammsauna: Vordach – ohne Vorraum – Stammköpfe gerundet – 1 Fenster – holzbeheizter Saunaofen

– PLZ-Bereich 4… – Ruhrgebiet –

Bereit für ein persönliches Angebot?

  • Gefällt Ihnen dieser Grundriss?
  • Trifft er auch auf Ihre Einbausituation zu?
Gern unterbreiten wir Ihnen ein kostenloses Angebot basierend auf dieser Sauna: Rundstammhaus 358 cm x 358 cm mit integrierter Naturstammsauna 250 cm x 250 cm Bitte geben Sie uns die Info „Die Naturstamm-Sauna der Familie Vorwerk“ mit.

Skizze dieser Sauna

Oder: Anfrage direkt an Familie Vorwerk

Hier können Sie per e-mail oder über telefonischen Rückruf direkt mit unseren Kunden Kontakt aufnehmen, evtl. auch um einen Termin für eine Ortsbesichtigung bitten.