Sauna mit wandhoher Verkleidung - Familie Baer

- 40 mm Massivholzsauna "Massiva-40" -

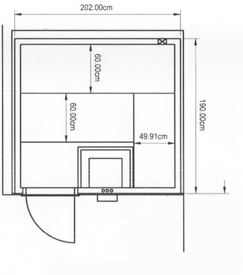
Saunagröße 202 cm x 190 cm x 220 cm,

Besonderheiten dieser Sauna: barrierefreie Tür – 8 kW Bio-Saunaofen „Kubic“ für vier verschiedene Badeformen – Abluftsystem mit Ventilator – wandhohe Verkleidung mit Espe-Profilbrettern

– PLZ-Bereich 66… – Nähe Saarbrücken –

Bereit für ein persönliches Angebot?

  • Gefällt Ihnen dieser Grundriss?
  • Trifft er auch auf Ihre Einbausituation zu?
Gern unterbreiten wir Ihnen ein kostenloses Angebot basierend auf dieser Sauna: Saunagröße 202 cm x 190 cm x 220 cm, Bitte geben Sie uns die Info „Sauna mit wandhoher Verkleidung – Familie Baer“ mit.

Skizze dieser Sauna

Oder: Anfrage direkt an Familie Baer

Hier können Sie per e-mail oder über telefonischen Rückruf direkt mit unseren Kunden Kontakt aufnehmen, evtl. auch um einen Termin für eine Ortsbesichtigung bitten.